3 rok, 85 m²
Välkommen till Ture Entré och Seniorgården med moderna och genomtänkta lägenheter för dig som fyllt 55 år. Här bor du i ett lättskött och bekvämt boende som erbjuder gemenskap med dina grannar. Gemensamhetslokal och stor innergård med planteringar och boulebana inbjuder här till sociala aktiviteter tillsammans. Bo mitt i centrala Sollentuna i stilren nyproduktionslägenhet med bara 400 meter till Sollentuna Centrum och pendeltåget.
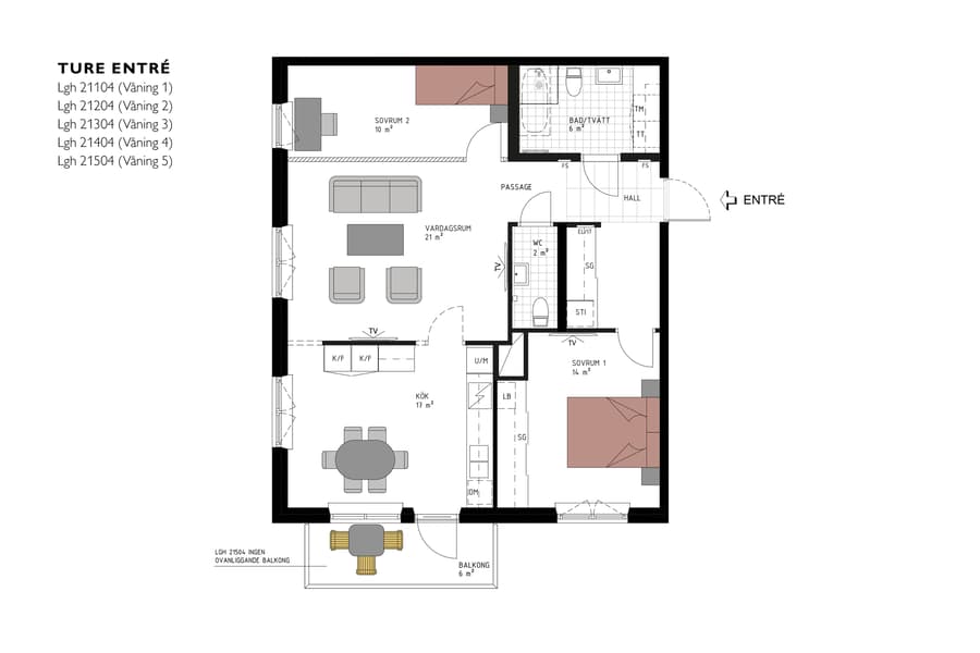
Denna hörnlägenhet erbjuder en genomtänkt planlösning med funktionell hall och stora sociala ytor. Hallen är rymlig, har stor skjutdörrsgarderob, säkerhetsdörr samt klinkergolv innanför dörren. Här har du även ingång till både badrum och gäst-WC. Kök och vardagsrum ligger separat men bredvid varandra. Köket är placerat i hörnet av lägenheten, vilket innebär att köket får en fin rymd och ljusinsläpp från fönster i två väderstreck. Härifrån köket har du även utgång till en rymlig möblerbar balkong i sydvästläge. Lägenheten har två sovrum, varav det större har en lång praktisk skjutdörrsgarderob.
De funktionella bostäderna i Seniorgården har låg fönsterbröstning i sovrum och vardagsrum för bra utsikt genom fönster och för ökat ljusinsläpp. Du har mycket bra förvaringsmöjligheter i lägenheten och till bostaden hör även ett förråd i källaren.
Lägenheten är stilfullt inredd och har är en genomtänkt helhet där alla detaljer stämmer fint ihop och skapar en röd tråd i ditt hem. Väggar och tak i lägenheten är vita och harmonierar fint med den mattlackade ekparketten på golvet och fönsterbänkarna i kalksten. Här får du en smakfull inredning som håller lång tid framöver.
Köket är lättskött, funktionellt och planerat för att inspirera till både matlagning och umgänge. Köket är inrett med släta luckor och har bänkskiva och snygg bakkantslist i samma färg. Här finns även induktionshäll, varmluftsugn, mikro, dubbla rostfria kyl/frys och helintegrerad diskmaskin.
Här finns även extra förhöjd tillgänglighet genom inbyggnadsugn med teleskopsutdrag för säker matlagning samt spisvakt som stänger av spisen vid rökutveckling och kan styras på distans. Med digital spisavstängning slipper du oroa dig för att du glömt stänga av spisen och du stänger av den med mobilen. Om olyckan är framme stängs spisen av innan det börjar brinna. Lika enkelt som självklart.
Badrummet är rymligt och stilsäkert inrett med stora kakelplattor, klinkergolv och fondvägg bakom WC. Här finns även tvättmaskin och torktumlare med låg energiförbrukning, dusch med skärmvägg i glas, energisnåla blandare, förhöjd WC-stol, generös förvaring och spegel som kan nås från sittande position. För en ljus och modern känsla sitter ingjutna spotlights i taket.
För extra tillgänglighet finns även en extra WC i lägenheten. Den är inredd med målade väggar, klinkergolv, spegel med belysning samt tvättställ med kommod.
Lägenheten har målade väggar i vitt (NCS 0500-N) inklusive WC. Köksluckorna har färgen Vit, bänkskivan är grå och heter Chromix Silver och handtagen heter Anemon. Badrummet har vitt kakel och grå fondvägg samt har klinkergolv i grått.
Bo mitt i centrala Sollentuna, i modern nyproduktionslägenhet som förenklar livet och erbjuder gemenskap. Här finns flera generösa gemensamhetsytor som till exempel gemensamhetslokal, övernattningsrum och tvättstuga. Sollentuna Centrums stora galleria med restauranger, affärer och pendeltåg ligger bara ca 400 meter bort. Vill du ta dig ut i naturen har du stora nyrenoverade och vackra Fågelsångsparken på nära håll och på promenadavstånd har du Edsvikens vattenlinje med småbåtshamn och badplats. Kommunikationerna är mycket bra med bussar och pendeltåg (Sollentuna), som tar en dryg kvart till Centralen. Här har du även nära access till E4 för dig som är bilburen.
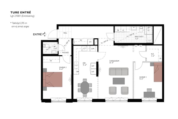
Denna hörnlägenhet erbjuder en genomtänkt planlösning med funktionell hall och stora sociala ytor. Hallen är rymlig, har stor skjutdörrsgarderob, säkerhetsdörr samt klinkergolv innanför dörren. Här har du även ingång till både badrum och gäst-WC. Kök och vardagsrum ligger separat men bredvid varandra. Köket är placerat i hörnet av lägenheten, vilket innebär att köket får en fin rymd och ljusinsläpp från fönster i två väderstreck. Härifrån köket har du även utgång till en rymlig möblerbar balkong i sydvästläge. Lägenheten har två sovrum, varav det större har en lång praktisk skjutdörrsgarderob.
De funktionella bostäderna i Seniorgården har låg fönsterbröstning i sovrum och vardagsrum för bra utsikt genom fönster och för ökat ljusinsläpp. Du har mycket bra förvaringsmöjligheter i lägenheten och till bostaden hör även ett förråd i källaren.
Lägenheten är stilfullt inredd och har är en genomtänkt helhet där alla detaljer stämmer fint ihop och skapar en röd tråd i ditt hem. Väggar och tak i lägenheten är vita och harmonierar fint med den mattlackade ekparketten på golvet och fönsterbänkarna i kalksten. Här får du en smakfull inredning som håller lång tid framöver.
Köket är lättskött, funktionellt och planerat för att inspirera till både matlagning och umgänge. Köket är inrett med släta luckor och har bänkskiva och snygg bakkantslist i samma färg. Här finns även induktionshäll, varmluftsugn, mikro, dubbla rostfria kyl/frys och helintegrerad diskmaskin.
Här finns även extra förhöjd tillgänglighet genom inbyggnadsugn med teleskopsutdrag för säker matlagning samt spisvakt som stänger av spisen vid rökutveckling och kan styras på distans. Med digital spisavstängning slipper du oroa dig för att du glömt stänga av spisen och du stänger av den med mobilen. Om olyckan är framme stängs spisen av innan det börjar brinna. Lika enkelt som självklart.
Badrummet är rymligt och stilsäkert inrett med stora kakelplattor, klinkergolv och fondvägg bakom WC. Här finns även tvättmaskin och torktumlare med låg energiförbrukning, dusch med skärmvägg i glas, energisnåla blandare, förhöjd WC-stol, generös förvaring och spegel som kan nås från sittande position. För en ljus och modern känsla sitter ingjutna spotlights i taket.
För extra tillgänglighet finns även en extra WC i lägenheten. Den är inredd med målade väggar, klinkergolv, spegel med belysning samt tvättställ med kommod.
Lägenheten har målade väggar i vitt (NCS 0500-N) inklusive WC. Köksluckorna har färgen Vit, bänkskivan är grå och heter Chromix Silver och handtagen heter Anemon. Badrummet har vitt kakel och grå fondvägg samt har klinkergolv i grått.
Bo mitt i centrala Sollentuna, i modern nyproduktionslägenhet som förenklar livet och erbjuder gemenskap. Här finns flera generösa gemensamhetsytor som till exempel gemensamhetslokal, övernattningsrum och tvättstuga. Sollentuna Centrums stora galleria med restauranger, affärer och pendeltåg ligger bara ca 400 meter bort. Vill du ta dig ut i naturen har du stora nyrenoverade och vackra Fågelsångsparken på nära håll och på promenadavstånd har du Edsvikens vattenlinje med småbåtshamn och badplats. Kommunikationerna är mycket bra med bussar och pendeltåg (Sollentuna), som tar en dryg kvart till Centralen. Här har du även nära access till E4 för dig som är bilburen.











