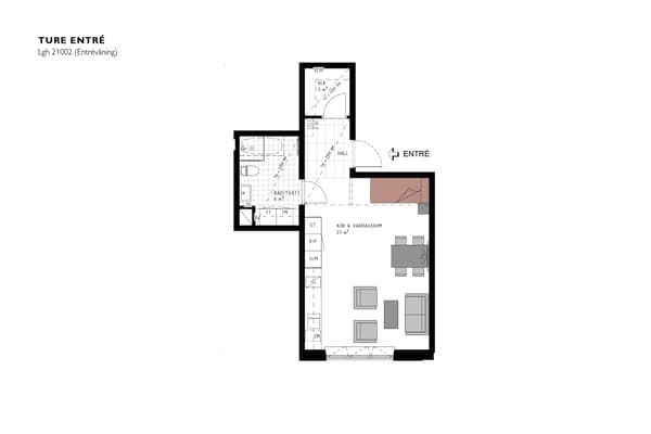
1 rok, 33 m²
Välplanerad etta med kök och sällskapsrum i öppen enhet, utsikt mot charmig gathusbebyggelse och en nisch för att skapa en avskild sovalkov. Badrummet är rymligt med kombimaskin för smidig klädvård i hemmet och entréhallen erbjuder gott om förvaring i skjutdörrsgarderob.
Eftersom du bor i markplan är alltid den sköna innergården i söder och de gemensamma utrymmena enkla att nå. Något som gör det lätt att umgås med grannar, pyssla med odling i växthuset eller bara njuta av en kaffe i solen på en av uteplatserna. Lika enkelt är det att nå hela stadens utbud som ligger alldeles runt husknuten. Via fönsterna i rummet möter du morgonsolen.
Varje lägenhet på Lilla Tvärgatan har en genomtänkt interiör som känns modern och ljus på det formrena skandinaviska sättet med ek, vitt, sand och grått som en harmonisk grund. Likaså får du Seniorgårdens baspaket ”Intelligenta hem” som säkerställer att du känner dig trygg med allt från brandskydd till smarta uttag med tidsinställning. Allt har valts med största omsorg för ett bekvämt och bekymmersfritt boende. Har du en önskan om att addera mer personlig prägel eller tillval finns det alltid möjlighet att skräddarsy din bostad.
Fastigheten på hörnet av Lilla Tvärgatan och Grynmalaregatan smälter fint in i stadsbilden med sin fasad av gediget tegel, burspråk, spanska balkonger och röda detaljer som flörtar med svunna tiders hantverk och arkitektur. På innergården är intrycket något modernare med stora glaspartier som vetter mot den gemensamma gården. Här samsas grannarna om ett gårdshus med gemensam lokal för både fest och aktiviteter, en gästlägenhet för nära och kära, boulebana och orangeri där det både kan odlas och intas middagar utanför högsäsongen. Här blomstrar både nya bekantskaper och grönska i en lugn oas mitt i stan.
Eftersom du bor i markplan är alltid den sköna innergården i söder och de gemensamma utrymmena enkla att nå. Något som gör det lätt att umgås med grannar, pyssla med odling i växthuset eller bara njuta av en kaffe i solen på en av uteplatserna. Lika enkelt är det att nå hela stadens utbud som ligger alldeles runt husknuten. Via fönsterna i rummet möter du morgonsolen.
Varje lägenhet på Lilla Tvärgatan har en genomtänkt interiör som känns modern och ljus på det formrena skandinaviska sättet med ek, vitt, sand och grått som en harmonisk grund. Likaså får du Seniorgårdens baspaket ”Intelligenta hem” som säkerställer att du känner dig trygg med allt från brandskydd till smarta uttag med tidsinställning. Allt har valts med största omsorg för ett bekvämt och bekymmersfritt boende. Har du en önskan om att addera mer personlig prägel eller tillval finns det alltid möjlighet att skräddarsy din bostad.
Fastigheten på hörnet av Lilla Tvärgatan och Grynmalaregatan smälter fint in i stadsbilden med sin fasad av gediget tegel, burspråk, spanska balkonger och röda detaljer som flörtar med svunna tiders hantverk och arkitektur. På innergården är intrycket något modernare med stora glaspartier som vetter mot den gemensamma gården. Här samsas grannarna om ett gårdshus med gemensam lokal för både fest och aktiviteter, en gästlägenhet för nära och kära, boulebana och orangeri där det både kan odlas och intas middagar utanför högsäsongen. Här blomstrar både nya bekantskaper och grönska i en lugn oas mitt i stan.





